ID CP2012371

Hală în Arad Zona Industriala Vest în regim Build to Suit 6600 mp

Această proprietate nu mai este activă,
te invităm să vizualizezi proprietăți similare

ID CP2012371

24,000 € + 21% TVA

Spațiu industrial de închiriat
Exterior Vest, Arad
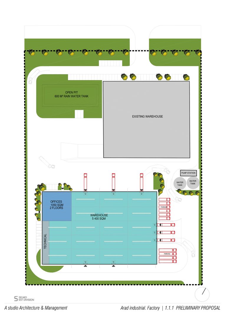
6,631 mp
2024

Pentru antreprenorii din domeniul producției: Închiriați o hală industrială modernă, construită la comandă pentru nevoile specifice ale afacerii dumneavoastră, pe o perioadă de 10 ani, în Arad, Zona Industrială Vest.

Caracteristici Principale:

Suprafața totală construită: 5.930 mp

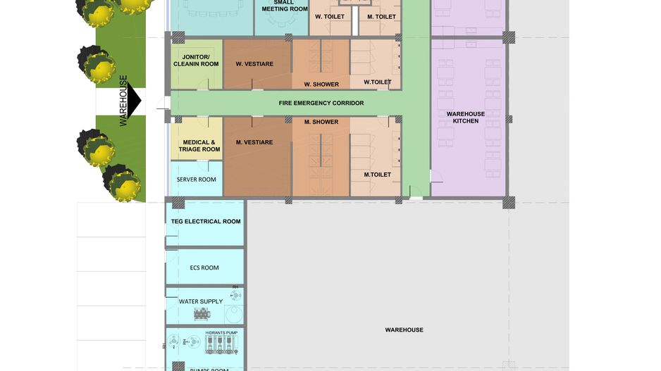
Suprafața birouri: 700 mp

Înălțime: 9 metri în partea centrală și 6 metri la margini

Structură: Prefabricate din beton pentru durabilitate și stabilitate

Specificații Tehnice:

Uși industriale: Deschidere de 4.0 x 4.5 metri

Rampă de încărcare: Deschidere de 3.0 x 3.0 metri, dotată cu rampă hidraulică de 2.0 x 2.5 metri și adăpost retractabil

Uși metalice pedestre: Dimensiuni de 1.0 x 2.05 metri

Pardoseală: Grosime de 18 cm, armată cu fibre de oțel, capacitate de încărcare de 5 tone/mp

Perete despărțitor: Panouri sandwich izolate cu spumă PUR, grosime de 60 mm

Utilități și Facilități:

Autorizație ISU, sprinklere și instalație aferentă, bazin de incendiu propriu

Electricitate monofazică și trifazică cu post de transformare propriu

Apă, canalizare, gaz, încălzire în pardoseală

Beneficii:

Personalizare: Hala construită la comandă, satisfăcând exact nevoile afacerii dvs.

Eficiență: Spații de birouri și depozitare optimizate pentru a maximiza productivitatea.

Accesibilitate: Situată într-o zonă industrială strategică, cu acces facil la rețelele de transport.

Disponibilitate:

Termen de finalizare: 12 luni

Preț: 24.000 Euro + TVA 19% / lună

Contactați-ne pentru detalii suplimentare și pentru a programa o vizionare!

📞 0721356746 FLORIN MOȘ

Citește mai mult

  • Tip imobil
    Hală
  • Etaj
    Parter, Mezanin
  • Clasă birouri
    A
  • Număr camere
    4
  • Număr băi
    3
  • Număr vestiare
    2
  • Număr terase
    1
  • Număr bucătării
    2
  • An construcție
    2024
  • Construcție nouă
    Da
  • Suprafață construită
    6,631 mp
  • Suprafață utilă
    6,631 mp
  • Suprafață totală birouri
    700 mp
  • Suprafață depozitare
    5,930 mp
  • Suprafață producție
    5,930 mp
  • Suprafață teren
    5,930 mp
  • Dimensiuni uși intrare
    4.0X4,5
  • Înălțime interioară
    9.0
  • Disponibilitate
    in 12 luni
  • Compartimentare spațiu
    Flexibil

Facilități

Acces auto
Acces TIR
Apă
Canalizare
Curent
Curent trifazic (380V)
Gaz
Iluminat stradal
La șosea
Luminatoare
Mijloace de transport în comun
Panouri solare
Posibilitate de compartimentare
Sistem de alarmă
Străzi asfaltate
Teren împrejmuit
Uși de acces
Vestiar
Necesare:

Site-ul nu poate funcționa corect fără aceste cookie-uri. Vezi cookie-urile

Statistică:

Strângem statistici anonime despre voi, vizitatorii unici, pentru a vă îmbunătăți experiența dumneavoastră. Vezi cookie-urile

Marketing:

Pentru a ne promova mai eficient serviciile noastre, folosim cookies pentru a vă identifica și a vă oferi proprietăți și servicii personalizate. Vezi cookie-urile

Acest site folosește cookies, află detalii. Alege ce tipuri de cookies dorești să permitem: