ID CP2700839

REZERVAT! Apartament pe str. Vicențiu Babeș

ID CP2700839

125,000 € (negociabil)

Apartament cu 3 camere de vânzare
Ultracentral, Arad
105 mp
1901

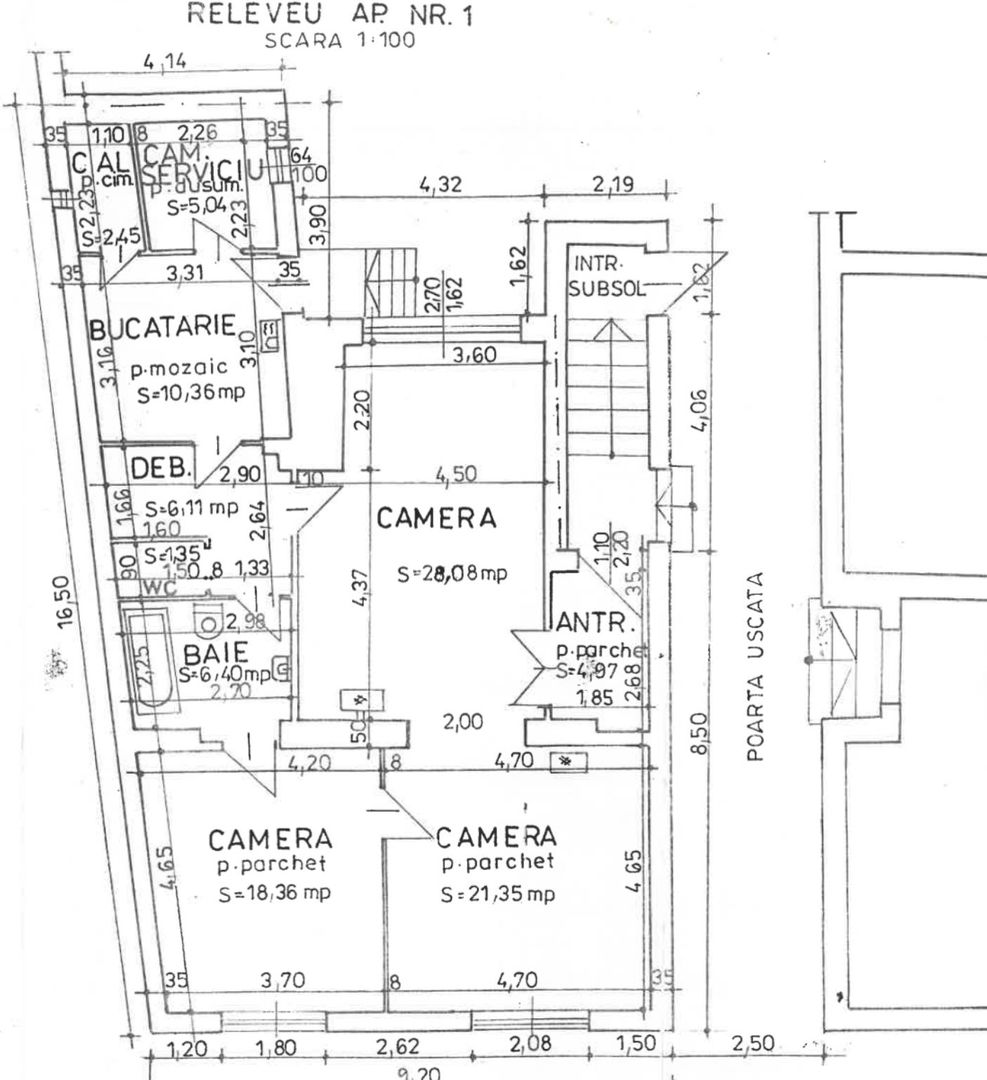
Vă propunem spre achiziție un apartament spațios și versatil, situat pe strada Vicențiu Babeș, perfect pentru o familie sau pentru profesioniști care își doresc un spațiu de lucru reprezentativ.

Apartamentul dispune de 3 camere generoase, cu parchet masiv și o compartimentare practică, ce permite atât utilizarea ca locuință confortabilă, cât și ca spațiu pentru birouri sau cabinete.

Caracteristici principale:

Suprafață generoasă, compartimentare practică

3 camere luminoase, la parter înalt

2 căi de acces directe în apartament

Centrală proprie pe gaz – eficiență și confort termic

Boxă curată la subsol pentru depozitare

Acces auto în curtea interioară – avantaj rar în zona centrală

Avantaje și utilizări posibile:

Locuință elegantă și spațioasă, într-o zonă ultracentrală și liniștită

Birouri sau cabinete private, datorită accesului facil și poziționării centrale

Investiție sigură într-una dintre cele mai căutate zone ale Aradului

📞 Pentru detalii și vizionări:

Sebastian Nica – 0722 252 639

Consultant Imobiliar – Agenția ACASĂ Arad

Cod proprietate: CP2700839

Citește mai mult

  • Tip apartament
    Apartament
  • Compartimentare
    Circular
  • Număr camere
    3
  • Dormitoare
    2
  • Număr bucătării
    1
  • Număr băi
    2
  • Etaj
    Parter
  • Suprafață utilă
    105 mp
  • Suprafață totală
    145 mp
  • Suprafață curte
    130 mp
  • Disponibilitate
    Imediat
  • Confort
    1
  • Stare interior
    Finisat clasic
  • Imobil
    Casă / Vilă
  • Stadiu construcție
    Finalizată
  • An construcție
    1901
  • Număr etaje clădire
    2
  • Număr subsoluri
    1
  • Cadastru
    Există
  • Intabulare
    Există
  • Mod de dobândire
    Moștenire
  • Certificat Energetic
    Există
  • Clasă Energetică
    B

Facilități

Apă
Apometre
Boxă la subsol
Bucătărie închisă
Calorifere
Canalizare
CATV
Centrală proprie
Contor electric
Contor gaz
Curent
Curte comună
Ferestre lemn
Gaz
Iluminat stradal
Interfon
Internet
Mijloace de transport în comun
Nemobilat
Parcare deschisă
Parchet
Pivniță
Rulouri / obloane lemn
Străzi asfaltate
Telefon
Ușă intrare lemn
Uși interior lemn
Vedere spre oraș
Sebastian Nica - ACASA | Agenție imobiliară
Sebastian Nica
Consultant imobiliar

0722252639


Solicită chiar acum o vizionare
Telefon
Sună acum Solicită vizionare
Necesare:

Site-ul nu poate funcționa corect fără aceste cookie-uri. Vezi cookie-urile

Statistică:

Strângem statistici anonime despre voi, vizitatorii unici, pentru a vă îmbunătăți experiența dumneavoastră. Vezi cookie-urile

Marketing:

Pentru a ne promova mai eficient serviciile noastre, folosim cookies pentru a vă identifica și a vă oferi proprietăți și servicii personalizate. Vezi cookie-urile

Acest site folosește cookies, află detalii. Alege ce tipuri de cookies dorești să permitem: